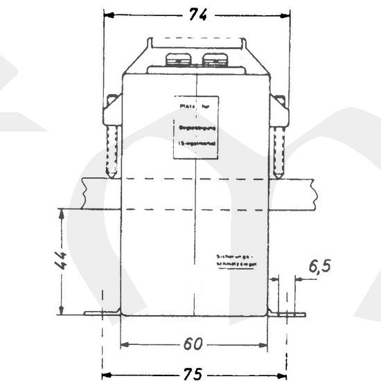
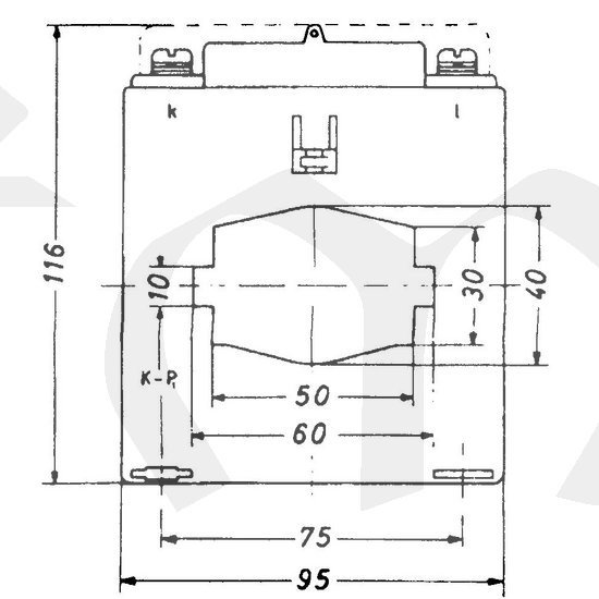
ASK 61.6, 100/5A; 1,5VA; 1%

Parametry výrobku:

Typ proudového transformátoru ASK 61.6
Primární proud trafa 100 A
Jedna pásovina 60x10 mm
Sekundární proud 5 A
Způsob přípoje, průměr nebo pás 40 mm
Třída přesnosti trafa 1 %
Dvě pásoviny 2x50x10 mm
Výkon 1,5 VA
Tři pásoviny 3x50x10 mm
Nadproudové číslo 5
Kód výrobce 20063
Hmotnost trafa 0,8 kg
Odkazy Popis parametrů měřících transformátorů proudu

Nadproudové křivky chyb nízkonapěťových měřících transformátorů proudu a schéma zapojení

Ke stažení: Trafa_EXIMUS_MBS.pdf
Spotreba_vedeni_k_trafu.pdf
Cena: 1213 Kč (bez DPH)
Cena: 1468 Kč včetně DPH 21 %
Do košíku

Id: 3635,